Bei diesen Wartehallen wird der Bus fast zur Nebensache. Entdecken Sie unser großartiges Sortiment von Wartehallen, bei denen der Komfort nur von der Qualität übertroffen wird. Machen Sie jetzt einen Termin aus!
Wartehalle System 30 in verschiedenen Ausführungen
Für Fragen und weitere Informationen stehen wir Ihnen jederzeit gerne zur Verfügung.
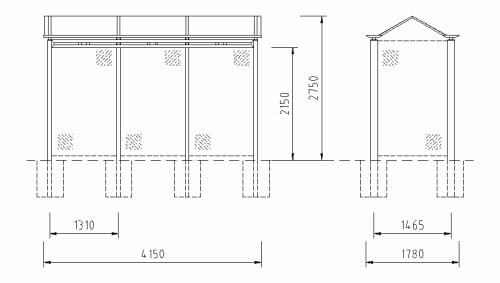
Wartehalle WH 30
Details Wartehalle WH 30
Grundkonstruktion
Ovales Aluminium-Strangpressprofil System 30. Verzinkte Stahlprofile. Beschichtung nach RAL, auf Wunsch auch mehrfarbig.
Dachdeckung
Verbundsicherheitsglas evtl. mit Scheibendekor optional in versch. Farben: Macrolon-Kunstglas, Acrylglas, Alu-Wabenplatten, Hochdrucklaminatplatten.
Wandelemente
Einscheibensicherheitsglas, wahlweise mit Scheibendekor oder in verschiedenen Farbtönen. Optional farbige Hochdruck-Laminatplatten. Seitliche, zugfreie Befestigung in Nuten des Aluminium-Pfostenprofils.
Entwässerung
Oberirdisch durch Stützen oder unterirdischem Kanalanschluss.
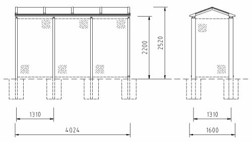
Varianten Wartehalle WH 30
4-feldrige Ausführung, Dachtiefe 2,20 m
4-feldrige Ausführung
Wartehalle WH 30, 3 Felder mit 2 Vorderwandelementen
Ovales Aluminium-Strangpressprofil System 30. Verzinkte Stahlprofile, Beschichtung nach RAL, auf Wunsch auch mehrfarbig.
Dachdeckung
4 mm Macrolon-Kunstglas, optional in versch. Farben.
Wandelemente
Einscheibensicherheitsglas, wahlweise mit Scheibendekor oder in verschiedenen Farbtönen. Optional farbige Hochdrucklaminatplatten. Seitliche, zugfreie Befestigung in Nuten des Aluminium-Pfostenprofils.
Entwässerung
Oberirdisch durch Stützen oder unterirdischem Kanalanschluss.
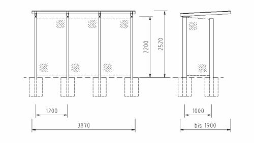
Varianten Wartehalle WH 31
Wartehalle WH31 mit Werbevitrine
Wartehalle WH31 mit schmalen Seitenteilen
Wartehalle WH 31, 2 Felder
Wartehalle WH 31, 3 Felder
3-feldrige Ausführung
Anfrage stellen per Ausschreibungstext anfordern
Möchten Sie den Preis wissen? Ich freue mich von Ihnen zu hören!
Ovales Aluminium-Strangpressprofil System 30. Beschichtung nach RAL, auf Wunsch auch mehrfarbig.
Dachdeckung
Verbundsicherheitsglas evtl. mit Scheibendekor optional in versch. Farben: Macrolon-Kunstglas, Acrylglas, Alu-Wabenplatten, Hochdrucklaminatplatten.
Wandelemente
Einscheibensicherheitsglas, wahlweise mit Scheibendekor oder in verschiedenen Farbtönen. Optional farbige Hochdruck-Laminatplatten. Seitliche, zugfreie Befestigung in Nuten des Aluminium-Pfostenprofils.
Entwässerung
Optional: Dachrinne mit Fallrohr und oberirdischer Entwässerung oder mit unterirdischem Kanalanschluss.
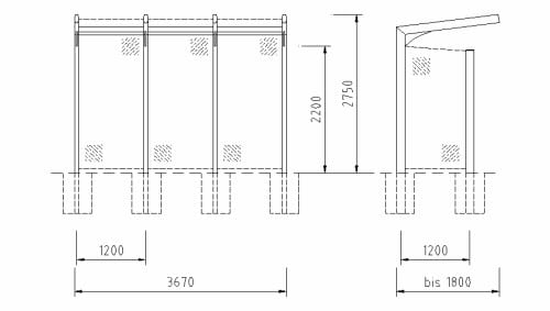
Rinnen- und Dachträger in formschöner Zink-Stahlkonstruktion, beschichtet nach RAL.
Ovales Aluminium-Strangpressprofil, Beschichtung nach RAL, auf Wunsch auch mehrfarbig.
Dachdeckung
Verzinkte Stahlwellbleche in verschiedenen Farben.
Wandelemente
Einscheibensicherheitsglas, wahlweise mit Scheibendekor oder in verschiedenen Farbtönen. Optional farbige Hochdruck-Laminatplatten. Seitliche, zugfreie Befestigung in Nuten des Aluminium-Pfostenprofils.
Entwässerung
Oberirdisch durch Stützen oder mit unterirdischem Kanalanschluss.
Ovales Aluminium-Strangpressprofil System 30. Verzinkte Stahlprofile, Beschichtung nach RAL, auf Wunsch auch mehrfarbig.
Dachdeckung
Verbundsicherheitsglas evtl. mit Scheibendekor optional in versch. Farben: Macrolon-Kunstglas, Acrylglas, Alu-Wabenplatten, Hochdrucklaminatplatten.
Wandelemente
Einscheibensicherheitsglas, wahlweise mit Scheibendekor oder in verschiedenen Farbtönen. Optional farbige Hochdrucklaminatplatten. Seitliche, zugfreie Befestigung in Nuten des Aluminium-Pfostenprofils.
Entwässerung
Optional: Dachrinne mit Fallrohr und oberirdischer Entwässerung oder mit unterirdischem Kanalanschluss.
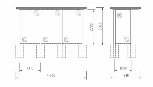
Varianten Wartehalle WH 34
3-feldrige Ausführung ohne Scheibendekor
4-feldrige Ausführung mit Dach-Scheiben-Dekor
Wartehalle WH 34 mit Dachbegrünung
2-feldrige Ausführung mit Scheibendekor und Drahtgittersitzbank
3-feldrige Ausführung als transportable Wartehalle mit oberflächenstrukturierter Beton- Bodenplatte mit Scheibendekor und Drahtgittersitzbank
3-feldrige Ausführung mit Holzsitzbank System 30
3-feldrige Ausführung als transportable Wartehalle mit oberflächenstrukturierter Beton- Bodenplatte
Wartehalle WH 34 3 Felder mit Betonbodenplatte und Drahtgittersitzbänken
Ovale Aluminium-Strangpressprofile. Verzinkte Stahlprofile, Beschichtung nach RAL, auf Wunsch auch mehrfarbig.
Dachdeckung
Verbundsicherheitsglas evtl. mit Scheibendekor optional in versch. Farben: Macrolon-Kunstglas, Acrylglas, Alu-Wabenplatten, Hochdrucklaminatplatten.
Wandelemente
Einscheibensicherheitsglas wahlweise mit Scheibendekor oder in verschiedenen Farbtönen. Optional farbige Hochdrucklaminatplatten. Seitliche, zugfreie Befestigung in Nuten des Aluminium-Pfostenprofils.
Entwässerung
Oberirdisch durch Stützen oder unterirdischem Kanalanschluss.
Ovale Aluminium-Strangpressprofile. Verzinkte Stahlprofile, Beschichtung nach RAL, auf Wunsch auch mehrfarbig.
Dachdeckung
Verbundsicherheitsglas evtl. mit Scheibendekor. optional in versch. Farben: Macrolon-Kunstglas, Acrylglas, Alu-Wabenplatten, Hochdrucklaminatplatten.
Wandelemente
Einscheibensicherheitsglas wahlweise mit Scheibendekor oder in verschiedenen Farbtönen. Optional farbige Hochdrucklaminatplatten. Seitliche, zugfreie Befestigung in Nuten des Aluminium-Pfostenprofils.
Entwässerung
Oberirdisch durch Stützen oder mit unterirdischem Kanalanschluss.
Das Wartehallen-Profil System 30 zeichnet sich durch vielseitige Funktionalität, attraktives Design und hohe Stabilität aus. Durch die gestalterische Vielfalt kann es harmonisch in unterschiedliche Landschafts- und Städtebilder integriert werden. Mit seinem ansprechenden Design sorgt es für ein Stück mehr Lebensqualität im öffentlichen Raum und erhöht die Akzeptanz für öffentliche Verkehrsmittel.
Die Technik dahinter
Aluminiumprofil als Grundelement für hohe Stabilität
Ein spezielles, hochwertiges Aluminiumprofil bildet das Grundelement für das Wartehallen-Profil System 30. Glaswände werden spaltfrei ohne Verschraubung mit Dichtungsprofilen eingesetzt. Offene Kammern können Anbau- oder Einbauelemente wie Werbeflächen, Geländeranschlüsse oder ähnliches mit verdeckter Verschraubung aufnehmen oder werden mit Lisenen, wahlweise andersfarbig, verschlossen. Sämtliche Verschraubungen bestehen aus Edelstahl. Eventuelle Ausstattungsmöglichkeiten wie Bänke, Fahrplanvitrinen, Abfallbehälter und anderes Zubehör bieten wir Ihnen auf Anfrage gerne an.
Auf uns können Sie bauen, wenn wir bauen
Montage, Service und Garantie
Die Endmontage am Einsatzort wird durch eigene Bautrupps mit Kranfahrzeugen termingerecht von uns ausgeführt. Von der Anlieferung über die Ausschachtungsarbeiten, bis hin zur Bodenpflasterung garantieren wir eine professionelle Abwicklung des Auftrages und ein optimales Preis-Leistungsverhältnis! Unfallbedingte Reparaturen und regelmäßige Wartungsarbeiten erfüllen unsere Service-Teams in kurzer Zeit durch effiziente Einsatzplanung und einem ständig aktualisierten Lagerbestand mit Ersatz- und Zubehörteilen. Auf Material und Verarbeitung für die von uns realisierten Projekte gewähren wir unseren Kunden eine Garantie von fünf Jahren. Wir unterstützen Sie gerne dabei, ein passendes Stadtmöblierungssystem für Ihre Stadt umzusetzen!
Unverbindlich Anfragen
Lust, unsere Produkte kennenzulernen?
Wir haben vielfältige Produkte für Städte, Gemeinden und Firmen. Ich möchte Sie gerne beraten, das Sie das passende Produkt für sich finden.
Sie sehen gerade einen Platzhalterinhalt von Turnstile. Um auf den eigentlichen Inhalt zuzugreifen, klicken Sie auf die Schaltfläche unten. Bitte beachten Sie, dass dabei Daten an Drittanbieter weitergegeben werden.