Unverbindlich Anfragen
Lust, unsere Produkte kennen­zulernen?

Wir haben vielfältige Produkte für Städte, Gemeinden und Firmen. Ich möchte Sie gerne beraten, das Sie das passende Produkt für sich finden.

Viele Grüße

Timo Zimmermann / Geschäftsführer

    Sie möchten die besten Preise für unsere Produkte anfragen?
    Ich akzeptiere die Datenschutzbestimmungen

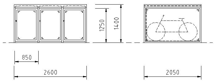
    Fahrradboxen

    Sicher, witterungsgeschützt und platzsparend

    Fahrradboxen sind die ideale Lösung, um Fahrräder sicher und geschützt unterzubringen – für Eigenheime, Wohnanlagen, Unternehmen oder öffentliche Plätze. Ob als Fahrradgarage ab 3 Stellplätzen oder als modulare Doppelstock-Fahrradbox: unsere Boxen bieten umfassenden Schutz vor Diebstahl und Witterung. Besonders in städtischen Gebieten und bei Mehrfamilienhäusern ermöglicht eine Fahrradgarage eine platzsparende und sichere Unterbringung.

    Hier gibt es Ihre perfekte Fahrradbox

    Modulares System

    Ab 3 Boxen aufwärts frei kombinierbar und erweiterbar

    Unterschiedliche Boxentypen

    Standardbox, Cargobox mit zusätzlichem Stauraum, Doppelstockbox für viel Platz auf kleiner Fläche - mit Bügelbefestigung und getrennten Zugängen im oberen und unteren Fach

    Dachvarianten für alle Anforderungen

    Bogendach oder Flachdach mit und ohne Begrünung

    Praktische und sichere Schließarten

    Zylinderschloss, Pfandschloss oder per App und RFID steuerbar

    Doppelstockbox

    So einfach lagern Sie Fahrräder in 2 Etagen

    Doppelstockboxen für Fahrräder sparen Platz, sind einfach zu öffnen und zu beladen und nahezu überall platzierbar.

    Robuste Konstruktion für langlebige Fahrradboxen

    Grundkonstruktion

    Verzinkte Stahlprofile und Blechkassetten, Beschichtung nach RAL, Sichere Verankerung im Boden

    Dachdeckung

    Verzinkte Stahlprofile, Beschichtung nach RAL. Wahlweise als Flachdach (auch mit Begrünung möglich) und Bogendach

    Wandelemente

    Verzinkte Stahlprofile und Blechkassetten, Beschichtung nach RAL.

    Entwässerung

    Oberirdisch

    Das spricht für Fahrradboxen

    Sicher und komfortabel, effizient und nachhaltig: Fahrradboxen sind eine ideale Lösung für private und kommunale Nutzung.

    Sicher und abschließbar

    Schützt zuverlässig vor Diebstahl und Vandalismus.

    Wetterschutz

    Bewahrt Fahrräder vor Regen, Schnee und UV-Strahlung.

    Robust und langlebig

    Verzinkter Stahl und korrosionsbeständige Materialien garantieren Langlebigkeit.

    Niedriger Wartungs­auf­wand

    Witterungsbeständige Materialien reduzieren den Pflegebedarf.

    Diskrete und strukturierte Ab­stell­möglichkeit

    Fahrräder und Zubehör können unauffällig gelagert werden.

    Anreiz zur Fahrrad­mobilität

    Sichere Abstellplätze fördern die Nutzung von Fahrrädern und entlasten den Autoverkehr.

    Attraktivität im öffentlichen Raum

    Fahrradboxen schaffen geordnete Abstellplätze und verbessern das Stadtbild.

    Effiziente Raumnutzung

    Fahrradboxen bieten Platz für mehrere Fahrräder auch auf kleinen Flächen.

    Umwelt­freundliches Image für Unternehmen

    Sichere Abstellplätze stärken die Nachhaltigkeit und die Zufriedenheit der Mitarbeiter.

    Fahrradboxen aus hochwertigen Materialien

    Unsere Fahrradboxen bestehen vollständig aus verzinktem Stahl, der hervorragenden Schutz gegen Korrosion bietet. Dieses langlebige und pflegeleichte Material ist speziell für den Außenbereich geeignet und schützt Fahrräder zuverlässig vor Witterungseinflüssen. Dank der hohen Festigkeit von verzinktem Stahl sind unsere Boxen besonders stabil und widerstandsfähig, was eine langfristige Nutzung gewährleistet.

    Finden Sie jetzt Ihre passende Fahrradbox

    Damit Ihre Fahrradbox genau auf Ihre Anforderungen abgestimmt ist, bietet Zimmermann flexible Ausführungen und eine hohe Individualisierbarkeit. Wählen Sie zwischen verschiedenen Dachvarianten wie Flach- oder Bogendach und gestalten Sie die Boxen als Reihenanlage für größere Abstellflächen. Zudem sind optional vandalismussichere Raumtrennungen verfügbar – so stellen Sie sicher, dass hochwertige Fahrräder nicht nur komfortabel und effizient, sondern auch optimal geschützt gelagert werden. Machen auch Sie Ihre Stadt oder Gemeinde, Ihr Unternehmen oder Wohnhaus attraktiver und bieten Sie Fahrradboxen an, um Räder sicher abzustellen.

    Download als PDF

    Laden Sie sich unsere Prospekte herunter

    Prospekt Fahrradüberdachungen
    Prospekt Fahrrad­überdachungen
    (PDF, 7 MB)
    Download
    Prospekt Wartehalle Meilenstein
    Prospekt Meilenstein
    (PDF, 12,4 MB)
    Download
    Prospekt System 30 Wartehallen
    Prospekt System 30
    (PDF, 6,5 MB)
    Download
    Prospekt Fahrgastunterstände
    Prospekt Fahrgast­unterstände
    (PDF, 1,8 MB)
    Download