Geschmacksmusterrechtlich geschützt

Wartehalle Tetra

Anrufen E-Mail schreiben
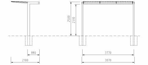
Eine vierfeldrige Wartehalle mit Scheibendekor, Sitzbank und NVV-Vitrine

Details Wartehalle Tetra

Grundkonstruktion

Verzinkte Stahlprofile, Beschichtung nach RAL.

Dachdeckung

Verbundsicherheitsglas evtl. mit Scheibendekor. optional in versch. Farben: Macrolon-Kunstglas, Acrylglas, Alu-Wabenplatten, Hochdrucklaminatplatten.

Wandelemente

Einscheibensicherheitsglas, wahlweise mit Scheibendekor oder in verschiedenen Farbtönen.
Optional farbige Hochdruck-Laminatplatten

Entwässerung

Oberirdisch durch Stützen oder unterirdischem Kanalanschluss.
Unverbindlich Anfragen
Lust, unsere Produkte kennen­zulernen?

Wir haben vielfältige Produkte für Städte, Gemeinden und Firmen. Ich möchte Sie gerne beraten, das Sie das passende Produkt für sich finden.

Viele Grüße

Timo Zimmermann / Geschäftsführer

    Sie möchten die besten Preise für unsere Produkte anfragen?
    Ich akzeptiere die Datenschutzbestimmungen

    Download als PDF

    Laden Sie sich unsere Prospekte herunter

    Prospekt Fahrradüberdachungen
    Prospekt Fahrrad­überdachungen
    (PDF, 7 MB)
    Download
    Prospekt Wartehalle Meilenstein
    Prospekt Meilenstein
    (PDF, 12,4 MB)
    Download
    Prospekt System 30 Wartehallen
    Prospekt System 30
    (PDF, 6,5 MB)
    Download
    Prospekt Fahrgastunterstände
    Prospekt Fahrgast­unterstände
    (PDF, 1,8 MB)
    Download